Details und Zeichnungen 

Holz-Alu Fensterprofil Duoline 88

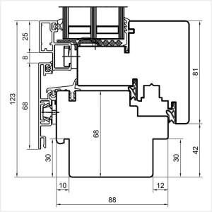
Holz-Alu Fensterprofil Duoline 88 Querschnitte

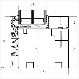
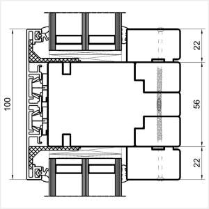
Duoline 88 Fenster Flügel und Rahmen mit Standardfalz

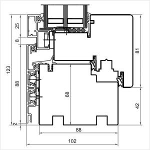
Duoline 88 Fenster mit Falz für Federprofil

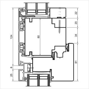
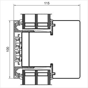
Duoline 88 Festverglasung mit Falz für Federprofil

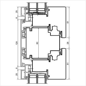
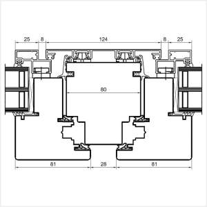
Duoline 88 Pfosten mit Flügel

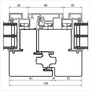
Duoline 88 Fenster mit Stulp

Duoline 88 Fenster mit Oberlicht Dreh-Kipp

Duoline 88 Fenster mit Oberlicht Fest

Holz-Alufenster Duoline 88 Sprossenarten

Innenliegende SZR Sprossen / Helima Sprossen

Innenliegende Sprosse 8 mm

Innenliegende Sprosse 18 mm

Innenliegende Sprosse 26 mm

Innenliegende Sprosse 45 mm

Glasteilende Sprossen – Kämpfer

Duoline 88 Glasteilende Sprosse-Kämpfer

Duoline 88 Festverglasung Kämpfer-Sprosse

Fenstermaxx24 Österreich, Online Fenster Konfigurator, Hausdach, Grafik

Kundenservice & Beratung

Kontaktformular