KUNSTOFFFENSTER DREH-KIPP KLASSISCH
Klassisches Kunststofffenster mit hochwertigen MACO MULTI MATIC KS Beschlägen. Bestens geeignet für den Einsatz im Außenbereich durch hervorragende Eigenschaften in Bezug auf Wärmedämmung, Schalldämmung und Sicherheit.
Pilzkopfverriegelung
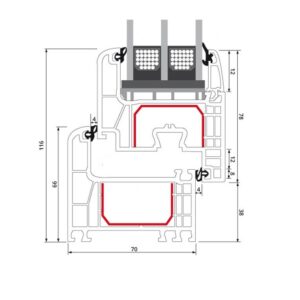
5-Kammer System
70mm Bautiefe
Ug= 1,1 W/m²K
Schalldämmung bis 32dB
2-fach Verglasung oder 3-fach (siehe Artikelname)
Das Fenstersystem bietet Ihnen ein 5 Kammer Profil mit 2 Anschlagsdichtungen sowie einer Bautiefe von 70mm. Die hervorragenden Wärmedämmeigenschaften sorgen so für ein angenehmes Klima bei Ihnen Zuhause und senken die Energiekosten.
- MACO MULTI MATIC KS Beschläge
- Schlankes Profil für mehr Lichteinfall
- Stahlverstärkung in U-Form
- Dichtungsfarbe: schwarz
- Rahmenfarbe aussen: siehe Artikelname
- Rahmenfarbe innen: weiss
- Dreh- & Kippfunktion
- 3 Felder T-Sprosse 18mm SZR























Rezensionen
Es gibt noch keine Rezensionen.