Details und Zeichnungen Holz-Alufenster Duoline 68
Holz-Alu Fensterprofil Duoline 68 Querschnitte
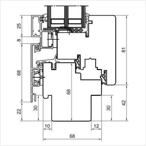
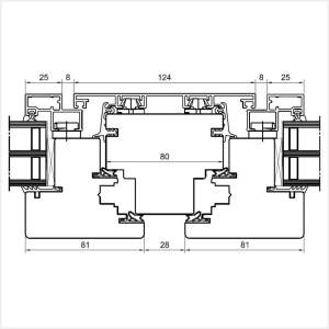
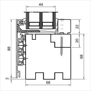
Duoline 68 Fenster Flügel
und Rahmen mit Standardfalz
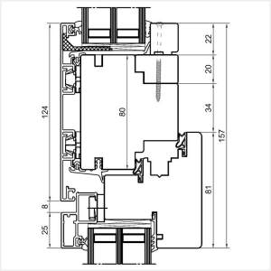
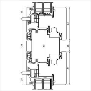
Duoline 68 Fenster mit
Falz für Federprofil
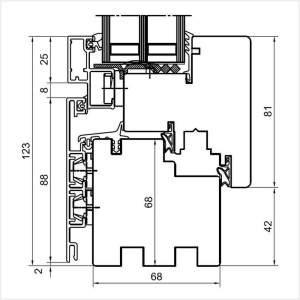
Duoline 68 Festverglasung mit
Falz für Federprofil
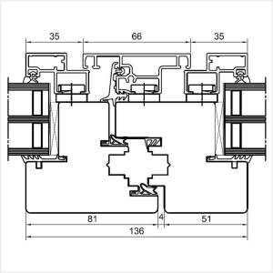
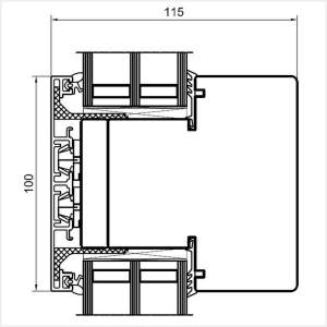
Duoline 68 Pfosten
mitFlügel
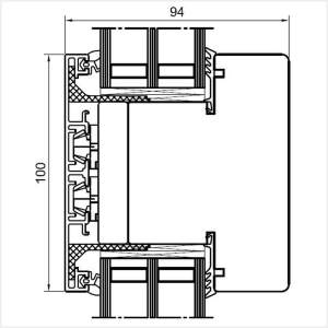
Duoline 68 Fenster
mit Stulp
Duoline 68 Fenster mit
Oberlicht Dreh-Kipp
Duoline 68 Fenster mit
Oberlicht Fest
Holz-Alufenster Duoline 68 Sprossenarten
Innenliegende SZR Sprossen / Helima Sprossen
Innenliegende Sprosse 8mm
Innenliegende Sprosse 18mm
Innenliegende Sprosse 26mm
Innenliegende Sprosse 45mm
Glasteilende Sprossen – Kämpfer
Duoline 68 Glasteilende Sprosse/Kämpfer
Duoline 68 Festverglasung Kämpfer-Sprosse
