Details und Zeichnungen 

Holzfenster Softline 78

Holz Fensterprofil Softline 78 Querschnitte

Fenstermaxx24 – Softline 78 Festverglasung

Softline 78 Festverglasung

Fenstermaxx24 – Softline 78 Fest im Rahmen

Softline 78 Fest im Rahmen

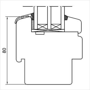
Fenstermaxx24 – Softline 78 Fest im Fluegel

Softline 78 Fest im Flügel

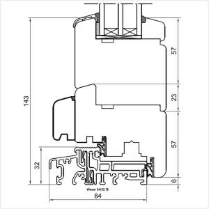
Fenstermaxx24 – Softline 78 Rahmen mit Fluegel Wetterschenkel

Softline 78 Rahmen mit Flügel Wetterschenkel

Fenstermaxx24 – Softline 78 Pfosten mit Fluegel

Softline 78 Pfosten mit Flügel

Fenstermaxx24 – Softline 78 Stulpfenster

Softline 78 Stulpfenster

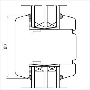
Fenstermaxx24 – Softline 78 Rahmen mit Fluegel

Softline 78 Rahmen mit Flügel

Holzfensterprofil Softline 78 Falz

Fenstermaxx24 – Softline 78 Standardfalz

Softline 78 Standardfalz

Fenstermaxx24 – Softline 78 Ohne Falz

Softline 78 Ohne Falz

Fenstermaxx24 – Softline 78 Aussenfalz

Softline 78 Außenfalz

Fenstermaxx24 – Softline 78 Innenfalz

Softline 78 Innenfalz

Fenstermaxx24 – Softline 78 Falz fuer Federprofile

Softline 78 Falz für Federprofile

Holzfenster Rahmenverbreiterung

Fenstermaxx24 – Softline 78 Rahmenverbreiterung 40 mm PR040

Softline 78 Rahmenverbreiterung 40 mm PR040

Fenstermaxx24 – Softline 78 Rahmenverbreiterung 80 mm PR080

Softline 78 Rahmenverbreiterung 80 mm PR080

Fenstermaxx24 – Softline 78 Rahmenverbreiterung 110 mm PR110

Softline 78 Rahmenverbreiterung 110 mm PR110

Fenstermaxx24 – Softline 78 Rahmenverbreiterung 140 mm PR140

Softline 78 Rahmenverbreiterung 140 mm PR140

Holzfenster Kopplungen

Fenstermaxx24 – Softline 78 Federkopplung

Softline 78 Federkopplung

Fenstermaxx24 – Softline 78 Eckkopplung 135° PP135

Softline 78 Eckkopplung 135° PP135

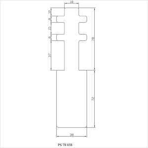
Fenstermaxx24 – Softline 78 Pfosten fuer Statische Kopplung PS78038

Softline 78 Pfosten für Statische Kopplung PS78038

Fenstermaxx24 – Softline 78 Eckkopplung 90° PP090

Softline 78 Eckkopplung 90° PP090

Holzfenster Sprossenarten

Innenliegende SZR Sprossen / Helima Sprossen

Fenstermaxx24 – Download 52

Innenliegende Sprosse 8 mm

Fenstermaxx24 – Download 53

Innenliegende Sprosse 18 mm

Fenstermaxx24 – Download 54

Innenliegende Sprosse 26 mm

Fenstermaxx24 – Download 55

Innenliegende Sprosse 45 mm

Aufgesetzte / Aufgeklebte Sprossen

Fenstermaxx24 – Wiener Sprossen aufgesetzt 26 mm

Wiener Sprossen (aufgesetzt) 26 mm

Fenstermaxx24 – Wiener Sprossen aufgesetzt 36 mm

Wiener Sprossen (aufgesetzt) 36 mm

Glasteilende Sprossen – Kämpfer

Fenstermaxx24 – Softline 78 Kaempfer Sprosse 60 mm

Softline 78 Kämpfer-Sprosse 60 mm

Fenstermaxx24 – Softline 78 Kaempfer Sprosse 80 mm

Softline 78 Kämpfer-Sprosse 80 mm

Fenstermaxx24 – Softline 78 Kaempfer Sprosse 103 mm

Softline 78 Kämpfer-Sprosse 103 mm

Fenstermaxx24 – Softline 78 Kaempfer Sprosse 110 mm

Softline 78 Kämpfer-Sprosse 110 mm

Fenstermaxx24 – Drutex Softline 78 Glasteilende Kaempfer Sprosse 130 mm Softline 78 Kaempfer Sprosse 130mm

Drutex Softline 78 Glasteilende Kämpfer-Sprosse 130 mm Softline 78 Kämpfer-Sprosse 130mm

Holzfenster Zierprofile und Leisten

Fenstermaxx24 – Zierprofil Holz EKP1

Zierprofil Holz EKP1

Fenstermaxx24 – Zierprofil Kopfstueck Holz

Zierprofil Kopfstück Holz

Fenstermaxx24 – Zierprofil Fussstueck Holz

Zierprofil Fußstück Holz

Fenstermaxx24 – Zierleiste Schlagleiste Holz LP201

Zierleiste Schlagleiste Holz LP201

Fenstermaxx24 – Zierleiste Kaempferleiste Holz LP101

Zierleiste Kämpferleiste Holz LP101

Fenstermaxx24 – Viertelstab Holz LWR015

Viertelstab Holz LWR015

Holz Abdeckleisten

Fenstermaxx24 – Holz Abdeckleisten 20 mm

Holz Abdeckleisten 20 mm

Fenstermaxx24 – Holz Abdeckleisten 50 mm

Holz Abdeckleisten 50 mm

Fenstermaxx24 – Holz Abdeckleisten 80 mm

Holz Abdeckleisten 80 mm

Holz Abschlussleisten

Fenstermaxx24 – Holz Abschlussleisten 20 mm

Holz Abschlussleisten 20 mm

Fenstermaxx24 – Holz Abschlussleisten 30 mm

Holz Abschlussleisten 30 mm

Fenstermaxx24 – Holz Abschlussleisten 40 mm

Holz Abschlussleisten 40 mm

Balkontür Holz Softline 78

Fenstermaxx24 – Softline 78 Balkontuer mit Blendrahmen

Softline 78 Balkontür mit Blendrahmen

Fenstermaxx24 – Softline 78 Balkontuer mit flacher Schwelle

Softline 78 Balkontür mit flacher Schwelle

Balkontür Holz Softline 78

Fenstermaxx24 – Aufsatzrollladen Fuehrungsschiene Holz PD110

Aufsatzrollladen Führungsschiene Holz PD110

Fenstermaxx24 – Aufsatzrollladen Fuehrungsschiene Holz PD120

Aufsatzrollladen Führungsschiene Holz PD120

Fenstermaxx24 – Aufsatzrollladen Traverse Holz LT 120

Aufsatzrollladen Traverse Holz LT 120

Fenstermaxx24 – Aufsatzrollladen 225 mm mit Holzfensterprofil Softline 78

Aufsatzrollladen 225 mm mit Holzfensterprofil Softline 78

Fenstermaxx24 Österreich, Online Fenster Konfigurator, Hausdach, Grafik

Kundenservice & Beratung

Kontaktformular