Details und Zeichnungen Kunststoff Hebeschiebetür Iglo HS
Kunststoff Hebeschiebetür Iglo HS
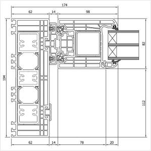
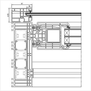
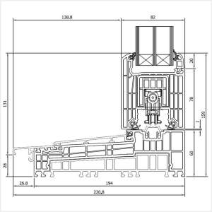
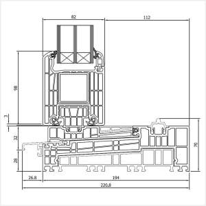
Hebeschiebetür Rahmenprofil Iglo HS
Iglo HS Tür Rahmen
mit Schiebeflügel
Iglo HS Tür Rahmen
mit Schiebeflügel oben mit dichtem Lauf
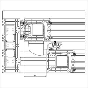
Iglo HS Tür Rahmen
mit Schiebeflügel oben mit weitem Lauf
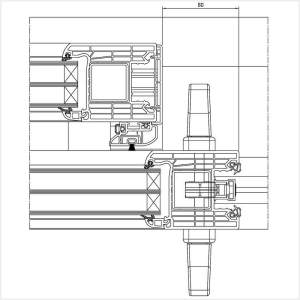
Iglo HS Tür Rahmen
mit festem Flügel
Iglo HS Tür Rahmen
mit festem Flügel oben
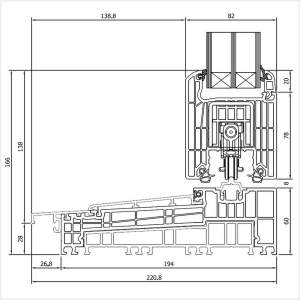
Iglo HS Tür Rahmenprofil
für Oberlicht
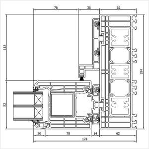
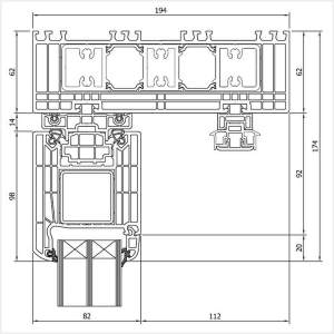
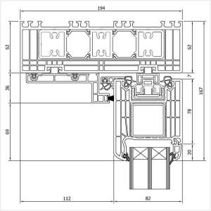
Hebeschiebetür Schwelle Iglo HS
Iglo HS Tür Schwelle mit festem Flügel
Iglo HS Tür Schwelle und Schiebeflügel mit dichtem Lauf
Iglo HS Tür Schwelle und Schiebeflügel mit weitem Lauf
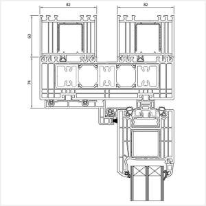
Hebeschiebetür Flügelprofil Iglo HS
Iglo HS Tür 1flg Schiebeflügel und fester Flügel
Iglo HS Tür 2flg Schiebeflügel Treffpunkt
Iglo HS Tür Stopper Schiebeflügel
Iglo HS Tür Stopper Schiebeflügel und Griff
Kunststoff Hebeschiebetür Iglo HS Einzelprofile
Iglo HS Flügelprofil
Iglo HS Rahmenprofil Oben
Iglo HS Schwelle
Kunststoff Hebeschiebetür Iglo HS Rahmenverbreiterung
Iglo HS Tür Rahmenverbreiterung 60mm oben
Iglo HS Tür Rahmenverbreiterung 60mm Schwelle
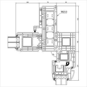
Kunststoff Hebeschiebetür Iglo HS Kopplungen
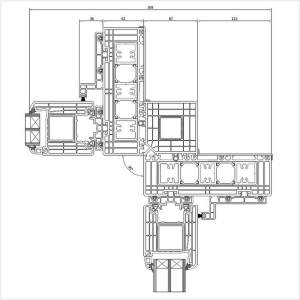
Iglo HS Tür Kopplung mit Dreh-Kipp Fenster
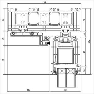
Iglo HS Tür Eckkopplung 90° mit Dreh-Kipp Fenster
Iglo HS Tür Eckkopplung 90° mit HS-Tür
Kunststoff Hebeschiebetür Iglo HS Sprossenarten
Innenliegende SZR Sprossen / Helima Sprossen
Innenliegende Sprosse 8mm
Innenliegende Sprosse 18mm
Innenliegende Sprosse 26mm
Innenliegende Sprosse 45mm
Glasteilende Sprossen – Kämpfer
Iglo HS Glasteilende Sprosse/Kämpfer
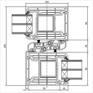
Kunststoff Hebeschiebetür Iglo HS Verglasungsbeispiele
Iglo HS Tür 2-fach Verglasung 36mm
Iglo HS Tür 3-fach Verglasung 40mm
Iglo HS Tür 3-fach Verglasung 44mm
Iglo HS Tür 3-fach Verglasung 48mm
Iglo HS Tür 3-fach Verglasung 52mm
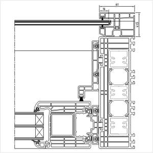
Aufsatzrollladen Führungsschienen mit Hebeschiebetür Iglo HS
Beidseitige Führungsschiene am Iglo HS Profil
Einseitige Führungsschiene am Iglo HS Profil Tür innen
Einseitige Führungsschiene am Iglo HS Profil Tür außen
